2511 4th St, Santa Monica, CA 90405

2511 4th St, Santa Monica, CA 90405

Santa Monica, CA
$1,700,000

Property Description

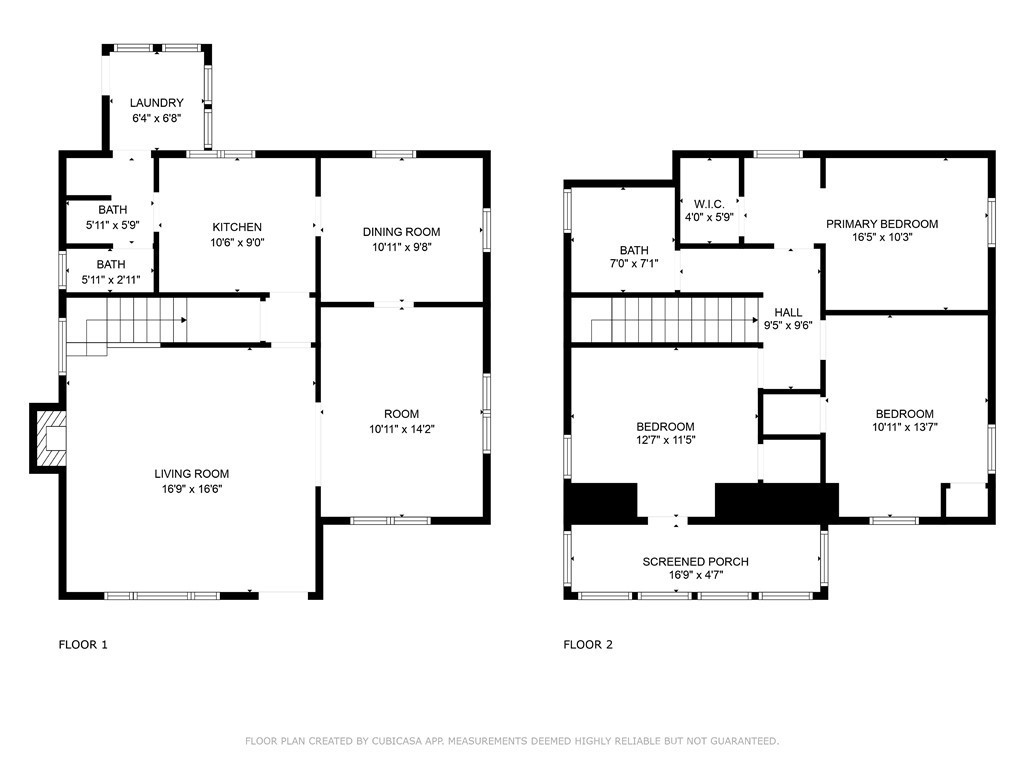
Welcome to 2511 4th Street, a FULLY VACANT blank canvas ready for an owner-user or savvy investor looking to reimagine a single-family residence with two flexible units. Priced at $775 per square foot, this value-add asset offers significant upside, with renovated comparables exceeding $1,300–$1,500 per square foot and an estimated ARV of $4M+. Situated on a 5,419 sq. ft. lot in one of Santa Monica’s most desirable pockets—just off 4th Street and walking distance to the ocean, shops, and dining—the property includes a 1,700 sq. ft. , 3-bedroom, 2-bath front home plus two rear units (2BD/1BA and 1BD/1BA), ideal for rental income, guests, or creative use as an office, gym, or studio. An expansive open yard separates the front and rear structures, perfect for entertaining or future enhancements like a pool. Parking includes a driveway, two-car garage, and additional rear space for a total of four spots. For owner-users, the property may qualify for an exemption from Santa Monica rent control. The potential of this property is truly unlimited—bring your contractors and stop by to see it for yourself. For a full marketing & design package, please see the supplementals or contact our team.

Property Features

  • Sale Price: $1,700,000
  • Area Size: 3,031 sq ft
  • Land Area: 5,149 sq ft
  • Year Built: 1920
  • Closing Date: 9/15/25
  • Units: 3

Lyon Stahl Investment Real Estate

Keep In Touch